New Downtown Development Project to get tax breaks up to nearly $4.5 million
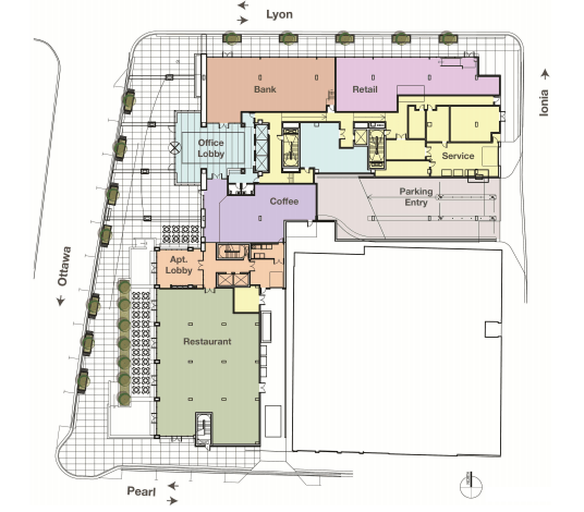
A new development project by Orion Real Estate Solutions was announced on Tuesday and will be located at 150 Ottawa NW in downtown Grand Rapids.
The $63.5 million development project will feature office space, some retail, parking for tenants and 123 one and two bedroom apartments at market rate. By market rate, they mean that the one and two bedroom apartments will run between $1,000 to $2,500 a month.
MLive reported, “The project developers are asking the DDA to approve a 15-year reimbursement of $3.7 million for expenses related to the costs of making the property barrier free and accessible.” However, documents submitted to the Grand Rapids Downtown Development Authority (DDA), showed that the amount of tax breaks the developer was looking for could be more.
“The Developer has agreed as a part of the Project to incur the costs of the Public Facility Improvements and has requested the DDA to reimburse it for such costs in an amount not to exceed $4,421,638 (the “Eligible Costs”) from tax increment revenues realized from the Project and available to the DDA for such use (the “Project Tax Increment Revenues”).”
Imagine what nearly $4.5 million dollars could do if it were to be used to build or provide affordable housing for working class individuals and families? Say one calculated that an average house was going for $100,000 in the city of Grand Rapids right now. Then take the $4.5 million and divide it by $100,000, you could divert that tax money to provide 45 homes for working class families.
Or one could look at what someone who makes $10 an hour in this city, which includes thousands of people. Working full time, that would result in an annual wage of $22,400. If we then took the standard 30% figure that people are supposed to spend on housing, that would mean that people making $22,400 a year would pay no more than $6,600 on housing costs. That translates into paying $550 a month for rent, which is damn near impossible to find right now in Grand Rapids.
However, if you were able to pay $550 a month for rent, that would mean that the $4.5 million in tax money being used for this new development project, could provide rent at $550 a month for 1 year, to 681 people. This is just from one development project. Imagine how much money could be raised for affordable housing just based on the amount of tax breaks provided to developers?


Comments are closed.